+7 (800) 505-63-73
Пн - Пт: с 09:00 до 18:00
Пн - Пт: с 09:00 до 18:00
+7 (800) 505-63-73
Настенная вентиляционная решетка с клапаном расхода воздуха РАГ-НГ+Р

Настенная вентиляционная решетка с клапаном расхода воздуха РАГ-НГ+Р

0
Нет отзывов
Артикул: 88
Поделиться списком
Ширина (мм)
X
Высота (мм)
Варианты крепления:
О
П
БЕЗ УКАЗАНИЯ ВАРИАНТА КРЕПЛЕНИЯ
Цвет по RAL: RAL 9016
RAL 9016
Без покраски
RAL по факту
Выбрать другой цвет
Характеристики
Место применения В стены
Материал Алюминий
1 284
В корзину
Быстрый подбор в Telegram
Наш технический специалист поможет выбрать идеальную конфигурацию
Собственное производство
До 1000 выпускаемых единиц в день
Быстрая доставка по России

Настенная вентиляционная решетка с клапаном расхода воздуха РАГ-НГ+Р

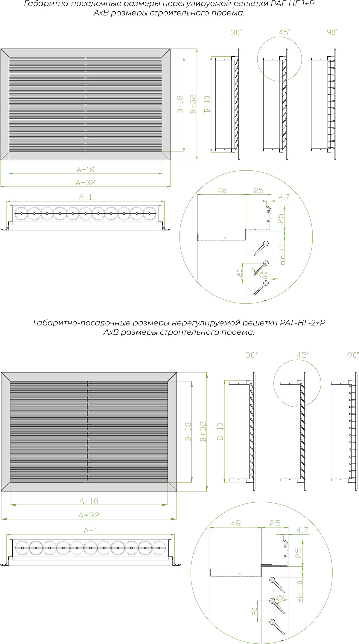
Решетка РАГ-НГ+Р с регулируемым клапаном расхода воздуха - профессиональное решение для точного контроля воздушного потока в системах вентиляции и кондиционирования.

Настенная вентиляционная решетка РАГ-НГ+Р представляет собой современное инженерное решение для систем приточно-вытяжной вентиляции. Ее ключевая особенность - встроенный клапан расхода воздуха (КРВ), позволяющий точно регулировать объем подаваемого воздушного потока. Это делает решетку незаменимой для создания комфортного микроклимата в помещениях различного назначения.

Конструктивные особенности

Решетка состоит из прочной алюминиевой рамки и горизонтально расположенных каплеобразных жалюзи, которые могут фиксироваться под тремя углами: 30°, 45° и 90°. Такая конструкция обеспечивает:

  • Исключение провисания жалюзи за счет специальной фиксирующей пластины
  • Возможность выбора направления воздушного потока (внутрь или наружу)
  • Эстетичный внешний вид без ущерба функциональности

Клапан расхода воздуха (КРВ)

Встроенный клапан расхода воздуха представляет собой инновационное решение для точной регулировки вентиляции. Его основные характеристики:

  • Регулировка положения лопаток с помощью удобной ручки
  • Плавное изменение площади свободного сечения
  • Точный контроль объема подаваемого воздуха
  • Простота управления без дополнительного инструмента

Технические параметры

Решетка РАГ-НГ+Р производится из высококачественного алюминиевого профиля АДЗ1 по ГОСТ 22233-2001. Основные технические характеристики:

  • Диапазон размеров: от 150×100 мм до 2900×2000 мм
  • Возможность изготовления нестандартных размеров с шагом 1 мм
  • Стандартное покрытие - порошковая краска RAL 9016 (белый)
  • Варианты исполнения жалюзи: тип 1 (внутрь) и тип 2 (наружу)

Решетка РАГ-НГ+Р сочетает в себе современный дизайн с высокой функциональностью. Благодаря регулируемому клапану расхода воздуха, она позволяет создавать оптимальные параметры воздухообмена в помещении, обеспечивая при этом эстетичный внешний вид. Качественные материалы и продуманная конструкция делают эту модель надежным решением для систем вентиляции любой сложности.

Характеристики

  • Место применения
    В стены
  • Материал
    Алюминий
Отзывы покупателей
Добавить отзыв
Помогите другим пользователям с выбором - будьте первым, кто поделится своим мнением об этом товаре
Фотографии и видео покупателей
Без оценки

Оплата:
 

Оплата заказа юридическими и физическими лицами осуществляется на основании счёта/договора.

Доставка осуществляется при условии 100% предоплаты товара.

 

Доставка по Москве:
 

  • при заказе от 50 000 руб. доставка по Москве бесплатная.
  • при заказе на сумму менее 50 000 руб.  доставка рассчитывается в зависимости от зоны Москвы. Для расчета точной стоимости доставки необходимо обратиться к менеджерам по тел.: 8 (495) 730-63-73, 8 (926) 075-34-87, 8 (800) 505-63-73 (бесплатно со всех номеров).
     

Доставка по России:
 

Доставка до транспортной компании бесплатная, далее за счет покупателя.

График бесплатной доставки в транспортные компании:

  • Понедельник — Деловые линии, ПЭК.
  • Среда — любая ТК.
  • Пятница — Деловые линии, ПЭК.
     

Самовывоз:
 

Склад находится по адресу: Московская область, городской округ Мытищи, посёлок Кардо-Лента, ул. Садовая, д. 19

Пн - Чт.: с 09:00 до 18:00. Пт.: с 09:00 до 17:00

Серия товаров: РАГ
Линейная вентиляционная решетка РАГ-НГ
Линейная вентиляционная решетка РАГ-НГ
Арт. 000002
Решетка регулируемая РАГ
4
Решетка регулируемая РАГ
Арт. 002029
Накладная регулируемая решетка однорядная РАГ-РН
Накладная регулируемая решетка однорядная РАГ-РН
Арт. 002030
Решетка для круглых воздуховодов РАГ-Ц
Решетка для круглых воздуховодов РАГ-Ц
Арт. 002032
Регулируемая решетка однорядная вертикальная РАГ-В
Регулируемая решетка однорядная вертикальная РАГ-В
Арт. 002034
Решетка регулируемая для установки в круглый воздуховод РАГ-ВЦ
Решетка регулируемая для установки в круглый воздуховод РАГ-ВЦ
Арт. 002036
Решетка с регулируемыми жалюзи однорядная РАГ-М
Решетка с регулируемыми жалюзи однорядная РАГ-М
Арт. 002037
Настенная вентиляционная решетка с клапаном расхода воздуха РАГ-НГ+Р
Настенная вентиляционная решетка с клапаном расхода воздуха РАГ-НГ+Р
Арт. 002060
Похожие товары
Линейная решетка РАН-Т
Линейная решетка РАН-Т
Арт. 002052
Нерегулируемая линейная решетка РАН-У2
Нерегулируемая линейная решетка РАН-У2
Арт. 002050
Вентиляционная решетка линейная с клапаном РАН-У+Р
Вентиляционная решетка линейная с клапаном РАН-У+Р
Арт. 002049
Неподвижная линейная решетка с КРВ РАН-Б+Р
Неподвижная линейная решетка с КРВ РАН-Б+Р
Арт. 002055
Акция
Линейная решетка с КРВ РАН-Р
4
Линейная решетка с КРВ РАН-Р
Арт. 002045
Настенная решетка с клапаном расхода воздуха РАН-У2+Р
Настенная решетка с клапаном расхода воздуха РАН-У2+Р
Арт. 002051
Линейная решетка накладная РАГ-НГ-Н
Линейная решетка накладная РАГ-НГ-Н
Арт. 002057
Линейная вентиляционная решетка РАГ-НГ
Линейная вентиляционная решетка РАГ-НГ
Арт. 000002
Рассчитать стоимость
Получите бесплатный расчет стоимости через 10 минут в Telegram
Оставьте номер телефона. В течение дня мы подготовим вам варианты реализации и расчет стоимости.
Нужна консультация?
Наши специалисты ответят на любой интересующий вопрос
Задать вопрос