+7 (800) 505-63-73
Пн - Пт: с 09:00 до 18:00
Пн - Пт: с 09:00 до 18:00
+7 (800) 505-63-73
Вертикальная регулируемая решетка с клапаном РАГ-В+Р
Вертикальная регулируемая решетка с клапаном РАГ-В+Р
Вертикальная регулируемая решетка с клапаном РАГ-В+Р
Вертикальная регулируемая решетка с клапаном РАГ-В+Р
Вертикальная регулируемая решетка с клапаном РАГ-В+Р
Вертикальная регулируемая решетка с клапаном РАГ-В+Р
Вертикальная регулируемая решетка с клапаном РАГ-В+Р
Вертикальная регулируемая решетка с клапаном РАГ-В+Р
Вертикальная регулируемая решетка с клапаном РАГ-В+Р
Вертикальная регулируемая решетка с клапаном РАГ-В+Р
Вертикальная регулируемая решетка с клапаном РАГ-В+Р
Вертикальная регулируемая решетка с клапаном РАГ-В+Р
Вертикальная регулируемая решетка с клапаном РАГ-В+Р
Вертикальная регулируемая решетка с клапаном РАГ-В+Р

Вертикальная регулируемая решетка с клапаном РАГ-В+Р

0
Нет отзывов
Артикул: 4077
Поделиться списком
Ширина (мм)
X
Высота (мм)
Варианты крепления:
О
Цвет по RAL: RAL 9016
RAL 9016
Без покраски
RAL по факту
Выбрать другой цвет
Характеристики
Место применения В стены
Серия решетки РАГ
Материал Алюминий
КЖС 0.72
1 067
В корзину
Быстрый подбор в Telegram
Наш технический специалист поможет выбрать идеальную конфигурацию
Собственное производство
До 1000 выпускаемых единиц в день
Быстрая доставка по России

Вертикальная регулируемая решетка с клапаном РАГ-В+Р

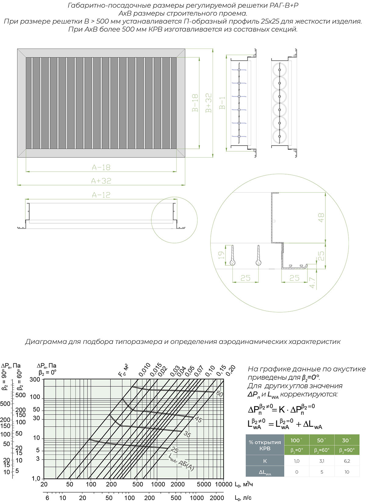
Решетка РАГ-В+Р с вертикальными жалюзи и клапаном расхода воздуха - профессиональное решение для точного управления воздушными потоками в системах вентиляции.

Конструктивные особенности

Решетка РАГ-В+Р представляет собой комбинированное устройство, состоящее из регулируемой решетки с вертикальными каплеобразными жалюзи и встроенного клапана расхода воздуха (КРВ). Каждое жалюзи может регулироваться независимо, позволяя точно направлять воздушный поток по вертикали. Клапан оснащен лопатками с ручным управлением для регулировки объема воздушного потока.

Технические параметры:

  • Материал: алюминиевый профиль АДЗ1 (ГОСТ 22233-2001)
  • Стандартное покрытие: порошковая краска RAL 9016
  • Диапазон размеров: от 100×80 мм до 2900×2000 мм
  • Усиление конструкции: П-образный профиль 25×25 мм при ширине свыше 500 мм

Функциональные возможности

Решетка обеспечивает двойное регулирование воздушного потока: направление через изменение угла вертикальных жалюзи и объем через клапан КРВ. Механизм клапана включает пластиковые шестеренки и втулки для плавной регулировки. Возможно изготовление нестандартных размеров с шагом 1 мм.

Особенности конструкции:

  • Вертикальное расположение регулируемых жалюзи
  • Ручное управление клапаном расхода воздуха
  • Возможность окраски в любой цвет по шкале RAL
  • КРВ поставляется без покрытия (окраска по запросу)

Применение и монтаж

Решетка РАГ-В+Р предназначена для использования в системах приточно-вытяжной вентиляции и кондиционирования воздуха. Монтируется в вентиляционные каналы и строительные проемы различных типов. Вертикальная ориентация жалюзи особенно эффективна для управления воздушными потоками в помещениях с высокими потолками или специфическими требованиями к распределению воздуха.

Благодаря точной регулировке положения каждого жалюзи и объема воздушного потока, решетка позволяет создавать оптимальные условия воздухообмена в различных типах помещений - от жилых до промышленных объектов.

Характеристики

  • Место применения
    В стены
  • Серия решетки
    РАГ
  • Материал
    Алюминий
  • КЖС
    0.72
Отзывы покупателей
Добавить отзыв
Помогите другим пользователям с выбором - будьте первым, кто поделится своим мнением об этом товаре
Фотографии и видео покупателей
Без оценки

Оплата:
 

Оплата заказа юридическими и физическими лицами осуществляется на основании счёта/договора.

Доставка осуществляется при условии 100% предоплаты товара.

 

Доставка по Москве:
 

  • при заказе от 50 000 руб. доставка по Москве бесплатная.
  • при заказе на сумму менее 50 000 руб.  доставка рассчитывается в зависимости от зоны Москвы. Для расчета точной стоимости доставки необходимо обратиться к менеджерам по тел.: 8 (495) 730-63-73, 8 (926) 075-34-87, 8 (800) 505-63-73 (бесплатно со всех номеров).
     

Доставка по России:
 

Доставка до транспортной компании бесплатная, далее за счет покупателя.

График бесплатной доставки в транспортные компании:

  • Понедельник — Деловые линии, ПЭК.
  • Среда — любая ТК.
  • Пятница — Деловые линии, ПЭК.
     

Самовывоз:
 

Склад находится по адресу: Московская область, городской округ Мытищи, посёлок Кардо-Лента, ул. Садовая, д. 19

Пн - Чт.: с 09:00 до 18:00. Пт.: с 09:00 до 17:00

Серия товаров: РАГ
Линейная вентиляционная решетка РАГ-НГ
Линейная вентиляционная решетка РАГ-НГ
Арт. 000002
Решетка регулируемая РАГ
4
Решетка регулируемая РАГ
Арт. 002029
Накладная регулируемая решетка однорядная РАГ-РН
Накладная регулируемая решетка однорядная РАГ-РН
Арт. 002030
Решетка для круглых воздуховодов РАГ-Ц
Решетка для круглых воздуховодов РАГ-Ц
Арт. 002032
Регулируемая решетка однорядная вертикальная РАГ-В
Регулируемая решетка однорядная вертикальная РАГ-В
Арт. 002034
Решетка регулируемая для установки в круглый воздуховод РАГ-ВЦ
Решетка регулируемая для установки в круглый воздуховод РАГ-ВЦ
Арт. 002036
Решетка с регулируемыми жалюзи однорядная РАГ-М
Решетка с регулируемыми жалюзи однорядная РАГ-М
Арт. 002037
Настенная вентиляционная решетка с клапаном расхода воздуха РАГ-НГ+Р
Настенная вентиляционная решетка с клапаном расхода воздуха РАГ-НГ+Р
Арт. 002060
Похожие товары
Решетка с регулируемыми жалюзи однорядная РАГ-М
Решетка с регулируемыми жалюзи однорядная РАГ-М
Арт. 002037
Цилиндрическая решетка РАД-Ц+Р
Цилиндрическая решетка РАД-Ц+Р
Арт. 000166
Двухрядная регулируемая решетка цилиндрическая РАД-Ц
Двухрядная регулируемая решетка цилиндрическая РАД-Ц
Арт. 002041
Двухрядная регулируемая решетка РАД - аналог АДН Арктос
Двухрядная регулируемая решетка РАД - аналог АДН Арктос
Арт. 002039
Решетка для круглых воздуховодов РАГ-Ц
Решетка для круглых воздуховодов РАГ-Ц
Арт. 002032
Регулируемая двухрядная решетка с клапаном расхода воздуха РАД-Р
Регулируемая двухрядная решетка с клапаном расхода воздуха РАД-Р
Арт. 000165
Регулирующая решетка с КРВ однорядная РАГ-М+Р
Регулирующая решетка с КРВ однорядная РАГ-М+Р
Арт. 000164
Решетка вентиляционная регулируемая с клапаном РАГ-Р
Решетка вентиляционная регулируемая с клапаном РАГ-Р
Арт. 000160
Рассчитать стоимость
Получите бесплатный расчет стоимости через 10 минут в Telegram
Оставьте номер телефона. В течение дня мы подготовим вам варианты реализации и расчет стоимости.
Нужна консультация?
Наши специалисты ответят на любой интересующий вопрос
Задать вопрос