+7 (800) 505-63-73
Пн - Пт: с 09:00 до 18:00
Пн - Пт: с 09:00 до 18:00
+7 (800) 505-63-73
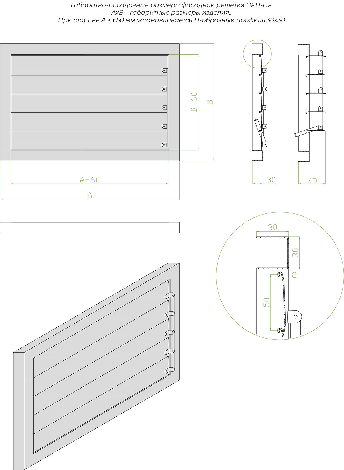
Наружная накладная регулируемая решетка ВРН-НР
Наружная накладная регулируемая решетка ВРН-НР
Наружная накладная регулируемая решетка ВРН-НР

Наружная накладная регулируемая решетка ВРН-НР

0
Нет отзывов
Артикул: 213
Поделиться списком
Ширина (мм)
X
Высота (мм)
Варианты крепления:
О
МП
Цвет по RAL: RAL 9016
RAL 9016
Без покраски
RAL по факту
Выбрать другой цвет
Характеристики
Место применения На фасад
Серия решетки ВРН
Материал Алюминий
КЖС 0.87
592
В корзину
Быстрый подбор в Telegram
Наш технический специалист поможет выбрать идеальную конфигурацию
Собственное производство
До 1000 выпускаемых единиц в день
Быстрая доставка по России

Наружная накладная регулируемая решетка ВРН-НР – контроль воздушных потоков

Решетка ВРН-НР представляет собой функциональное решение для систем вентиляции с возможностью ручной регулировки воздушного потока. Конструкция с подвижными ламелями позволяет точно дозировать объем поступающего воздуха благодаря механизму управления, расположенному с лицевой или задней стороны изделия.

Конструктивные особенности решетки ВРН-НР

Изделие отличается продуманной инженерной разработкой:

  • Запатентованный алюминиевый профиль АДЗ1 по ГОСТ 22233-2001
  • Система подвижных ламелей с плавной регулировкой
  • Усиленный профиль для крупногабаритных моделей

Технические параметры и размерный ряд

Решетка предлагает широкие возможности для монтажа:

  • Стандартные размеры от 100×100 мм до 2000×1000 мм
  • Возможность изготовления цельной конструкции до 6000×3000 мм
  • Секционное исполнение для больших проемов

Решетка ВРН-НР – это оптимальное сочетание функциональности регулируемой системы воздухообмена и надежности алюминиевой конструкции.

Варианты исполнения и монтажа

Производитель предлагает различные варианты установки:

  • Накладной монтаж на поверхность стены
  • Утопленная установка в проем
  • Крепление с использованием монтажной пластины

Стандартное исполнение решетки предусматривает белое полиэфирное порошковое покрытие (RAL 9016), однако по индивидуальному запросу возможно изготовление изделия в любом цвете из палитры RAL. Дополнительно решетка может комплектоваться адаптером для соединения с воздуховодом, что расширяет возможности ее применения в различных системах вентиляции.

Характеристики

  • Место применения
    На фасад
  • Серия решетки
    ВРН
  • Материал
    Алюминий
  • КЖС
    0.87
Отзывы покупателей
Добавить отзыв
Помогите другим пользователям с выбором - будьте первым, кто поделится своим мнением об этом товаре
Фотографии и видео покупателей
Без оценки

Оплата:
 

Оплата заказа юридическими и физическими лицами осуществляется на основании счёта/договора.

Доставка осуществляется при условии 100% предоплаты товара.

 

Доставка по Москве:
 

  • при заказе от 50 000 руб. доставка по Москве бесплатная.
  • при заказе на сумму менее 50 000 руб.  доставка рассчитывается в зависимости от зоны Москвы. Для расчета точной стоимости доставки необходимо обратиться к менеджерам по тел.: 8 (495) 730-63-73, 8 (926) 075-34-87, 8 (800) 505-63-73 (бесплатно со всех номеров).
     

Доставка по России:
 

Доставка до транспортной компании бесплатная, далее за счет покупателя.

График бесплатной доставки в транспортные компании:

  • Понедельник — Деловые линии, ПЭК.
  • Среда — любая ТК.
  • Пятница — Деловые линии, ПЭК.
     

Самовывоз:
 

Склад находится по адресу: Московская область, городской округ Мытищи, посёлок Кардо-Лента, ул. Садовая, д. 19

Пн - Чт.: с 09:00 до 18:00. Пт.: с 09:00 до 17:00

Серия товаров: ВРН
Хит
Наружная вентиляционная решетка ВРН
4
Наружная вентиляционная решетка ВРН
Арт. 000001
Наружная накладная решетка ВРН-Н
Наружная накладная решетка ВРН-Н
Арт. 002014
Фасадная решетка ВРН24
Фасадная решетка ВРН24
Арт. 002016
Наружная решетка ВРН-А - Аналог решетки АРН арктос
Наружная решетка ВРН-А - Аналог решетки АРН арктос
Наружная круглая решетка ВРНК
Наружная круглая решетка ВРНК
Арт. 000011
Алюминиевая вентиляционная решетка ВРН-К
Алюминиевая вентиляционная решетка ВРН-К
Арт. 002017
Решетка из оцинкованной стали ВРН-С
Решетка из оцинкованной стали ВРН-С
Арт. 002018
Накладная решетка стальная ВРН-НС
Накладная решетка стальная ВРН-НС
Арт. 002020
Похожие товары
Решетка из оцинкованной стали ВРН-С
Решетка из оцинкованной стали ВРН-С
Арт. 002018
Хит
Наружная решетка РН-50
4
Наружная решетка РН-50
Арт. 000013
Наружная решетка из нержавеющей стали РНС
Наружная решетка из нержавеющей стали РНС
Арт. 002027
Хит
Наружная вентиляционная решетка ВРН
4
Наружная вентиляционная решетка ВРН
Арт. 000001
Вентиляционная решетка оцинкованная РОС
Вентиляционная решетка оцинкованная РОС
Арт. 002028
Наружная решетка ВРН-А - Аналог решетки АРН арктос
Наружная решетка ВРН-А - Аналог решетки АРН арктос
Накладная решетка стальная ВРН-НС
Накладная решетка стальная ВРН-НС
Арт. 002020
Вентиляционная решетка оцинкованная ВРЖС
Вентиляционная решетка оцинкованная ВРЖС
Арт. 002015
Рассчитать стоимость
Получите бесплатный расчет стоимости через 10 минут в Telegram
Оставьте номер телефона. В течение дня мы подготовим вам варианты реализации и расчет стоимости.
Нужна консультация?
Наши специалисты ответят на любой интересующий вопрос
Задать вопрос