+7 (800) 505-63-73
Пн - Пт: с 09:00 до 18:00
Пн - Пт: с 09:00 до 18:00
+7 (800) 505-63-73
Рамка для конвектора Z-образная
Рамка для конвектора Z-образная
Рамка для конвектора Z-образная
Рамка для конвектора Z-образная
Рамка для конвектора Z-образная

Рамка для конвектора Z-образная

0
Нет отзывов
Артикул: 4104
Поделиться списком
Ширина (мм)
X
Высота (мм)
Анодирование:
— нет
A1 - алюминий
A2-G23 золото
A2-C0 серебро
A2-C33 бронза
Цвет по RAL: RAL 9016
RAL 9016
Без покраски
RAL по факту
Выбрать другой цвет
Характеристики
Место применения В пол
Материал Алюминий
3 204
В корзину
Быстрый подбор в Telegram
Наш технический специалист поможет выбрать идеальную конфигурацию
Собственное производство
До 1000 выпускаемых единиц в день
Быстрая доставка по России
  • Описание
  • Характеристики
  • Отзывы
  • Доставка и оплата

Рамка для конвектора Z-образная

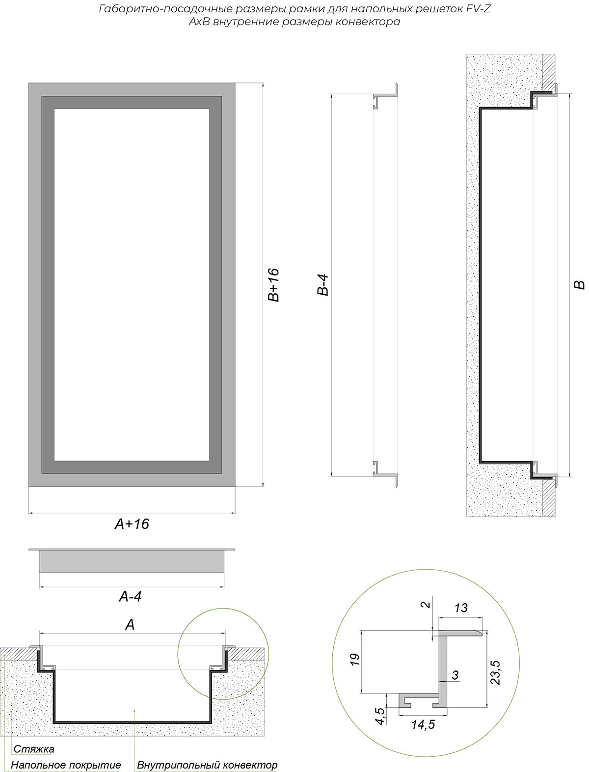
Z-образная рамка представляет собой профессиональное решение для монтажа внутрипольных конвекторов в различные типы напольных покрытий. Конструкция профиля обеспечивает надежное скрытие монтажных стыков и придает дополнительную жесткость корпусу конвектора.

Технические характеристики

Рамка обладает следующими конструктивными особенностями:

  • Изготовлена из алюминиевого профиля АДЗ1 по ГОСТ 22233-2018
  • Фланец шириной 13 мм для надежного крепления
  • Основание для установки рулонной решетки
  • Стандартное покрытие - порошковая краска RAL 9016

Варианты поставки и монтажные особенности

Производитель предлагает несколько вариантов комплектации:

1. Готовые рамки по размерам конвектора
2. Погонажная поставка с кратностью 3 метра

Z-образная форма профиля обеспечивает простой монтаж в любые типы полов, включая сложные многослойные конструкции. Рамка поставляется в цвете решетки, что обеспечивает эстетически законченный вид.

Z-образная рамка для конвекторов - это универсальное решение для профессионального монтажа, сочетающее в себе функциональность, надежность и эстетичный внешний вид. Особенность конструкции позволяет скрывать технологические зазоры при установке в различные типы напольных покрытий.

При выборе Z-образной рамки необходимо учитывать внутренние размеры конвектора и особенности напольного покрытия. По запросу возможно изготовление рамки с покрытием в любой цвет по шкале RAL или с анодированием для достижения идеального соответствия дизайну помещения.

Характеристики

  • Место применения
    В пол
  • Материал
    Алюминий
Отзывы покупателей
Добавить отзыв
Помогите другим пользователям с выбором - будьте первым, кто поделится своим мнением об этом товаре
Фотографии и видео покупателей
Без оценки

Оплата:
 

Оплата заказа юридическими и физическими лицами осуществляется на основании счёта/договора.

Доставка осуществляется при условии 100% предоплаты товара.

 

Доставка по Москве:
 

  • при заказе от 50 000 руб. доставка по Москве бесплатная.
  • при заказе на сумму менее 50 000 руб.  доставка рассчитывается в зависимости от зоны Москвы. Для расчета точной стоимости доставки необходимо обратиться к менеджерам по тел.: 8 (495) 730-63-73, 8 (926) 075-34-87, 8 (800) 505-63-73 (бесплатно со всех номеров).
     

Доставка по России:
 

Доставка до транспортной компании бесплатная, далее за счет покупателя.

График бесплатной доставки в транспортные компании:

  • Понедельник — Деловые линии, ПЭК.
  • Среда — любая ТК.
  • Пятница — Деловые линии, ПЭК.
     

Самовывоз:
 

Склад находится по адресу: Московская область, городской округ Мытищи, посёлок Кардо-Лента, ул. Садовая, д. 19

Пн - Чт.: с 09:00 до 18:00. Пт.: с 09:00 до 17:00

Похожие товары
Решетка напольная для бассейнов ЛДП
Решетка напольная для бассейнов ЛДП
Арт. 000093
Профиль для окантовки конвектора J-образный
Профиль для окантовки конвектора J-образный
Арт. 000184
Профиль Z-образный для решетки в конвектор (пог.м.)
Профиль Z-образный для решетки в конвектор (пог.м.)
Арт. 000198
Напольная вентиляционная решетка НПР, НПР-Р
Напольная вентиляционная решетка НПР, НПР-Р
Арт. 000092
Окантовочный профиль F-образный
Окантовочный профиль F-образный
Арт. 000185
L-образная рамка для напольного конвектора
L-образная рамка для напольного конвектора
Окантовочный профиль F-образный (пог.м.)
Окантовочный профиль F-образный (пог.м.)
Арт. 000190
Профиль L-образный для напольной решетки в конвектор (пог.м.)
Профиль L-образный для напольной решетки в конвектор (пог.м.)
Арт. 000197
Рассчитать стоимость
Получите бесплатный расчет стоимости через 10 минут в Telegram
Оставьте номер телефона. В течение дня мы подготовим вам варианты реализации и расчет стоимости.
Нужна консультация?
Наши специалисты ответят на любой интересующий вопрос
Задать вопрос