+7 (800) 505-63-73
Пн - Пт: с 09:00 до 18:00
Пн - Пт: с 09:00 до 18:00
+7 (800) 505-63-73
Профиль Z-образный для решетки в конвектор (пог.м.)
Профиль Z-образный для решетки в конвектор (пог.м.)
Профиль Z-образный для решетки в конвектор (пог.м.)
Профиль Z-образный для решетки в конвектор (пог.м.)
Профиль Z-образный для решетки в конвектор (пог.м.)

Профиль Z-образный для решетки в конвектор (пог.м.)

0
Нет отзывов
Артикул: 4116
Поделиться списком
Возможные размеры: 3 пог.м.
3 пог.м.
Анодирование:
— нет
A1 - алюминий
A2-G23 золото
A2-C0 серебро
A2-C33 бронза
Цвет по RAL: RAL 9016
RAL 9016
Без покраски
RAL по факту
Выбрать другой цвет
Характеристики
Место применения В пол
Материал Алюминий
3 430
В корзину
Быстрый подбор в Telegram
Наш технический специалист поможет выбрать идеальную конфигурацию
Собственное производство
До 1000 выпускаемых единиц в день
Быстрая доставка по России
  • Описание
  • Характеристики
  • Отзывы
  • Доставка и оплата

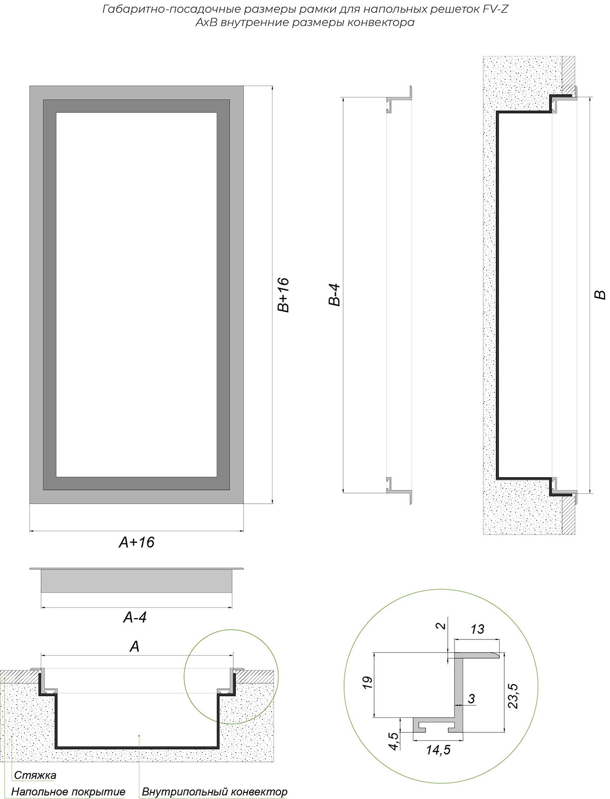
Z-образный профиль для решетки конвектора (пог.м.)

Z-образный профиль - универсальное решение для профессионального монтажа решеток конвекторов в различные конструкции пола.

Конструктивные особенности и технические параметры

Z-образный профиль изготавливается из алюминиевого сплава АДЗ1 по ГОСТ 22233-2018. Профиль предназначен для монтажа решеток конвекторов и создания жесткого основания конструкции. Особенностью Z-образного профиля является возможность установки конвектора в любые типы полов.

Основные характеристики профиля:

  • Материал: алюминиевый профиль АДЗ1
  • Конструкция: Z-образная форма с фланцем 13 мм
  • Покрытие: полиэфирная порошковая краска RAL 9016 (белый)
  • Форма поставки: погонные метры (кратно 3 м)
  • Дополнительные варианты: анодирование или другие цвета RAL

Монтаж и сфера применения

Z-образный профиль обеспечивает:

  • Надежное крепление решетки конвектора
  • Маскировку стыков между корпусом конвектора и напольным покрытием
  • Повышенную жесткость всей конструкции
  • Возможность установки в различные типы полов

Профиль поставляется отрезками по 3 метра для удобства транспортировки и последующей нарезки на объекте согласно требуемым размерам конвектора. Для монтажа используется стандартный инструмент для работы с алюминиевыми профилями.

Области применения Z-образного профиля:

  • Монтаж водяных внутрипольных конвекторов
  • Установка электрических обогревателей
  • Обрамление вентиляционных решеток
  • Создание декоративных напольных элементов

Стандартное цветовое исполнение профиля соответствует цвету решетки конвектора (RAL 9016). По специальному запросу возможно изготовление профиля с анодированным покрытием или покраской в любой цвет по шкале RAL для реализации дизайнерских решений.

Характеристики

  • Место применения
    В пол
  • Материал
    Алюминий
Отзывы покупателей
Добавить отзыв
Помогите другим пользователям с выбором - будьте первым, кто поделится своим мнением об этом товаре
Фотографии и видео покупателей
Без оценки

Оплата:
 

Оплата заказа юридическими и физическими лицами осуществляется на основании счёта/договора.

Доставка осуществляется при условии 100% предоплаты товара.

 

Доставка по Москве:
 

  • при заказе от 50 000 руб. доставка по Москве бесплатная.
  • при заказе на сумму менее 50 000 руб.  доставка рассчитывается в зависимости от зоны Москвы. Для расчета точной стоимости доставки необходимо обратиться к менеджерам по тел.: 8 (495) 730-63-73, 8 (926) 075-34-87, 8 (800) 505-63-73 (бесплатно со всех номеров).
     

Доставка по России:
 

Доставка до транспортной компании бесплатная, далее за счет покупателя.

График бесплатной доставки в транспортные компании:

  • Понедельник — Деловые линии, ПЭК.
  • Среда — любая ТК.
  • Пятница — Деловые линии, ПЭК.
     

Самовывоз:
 

Склад находится по адресу: Московская область, городской округ Мытищи, посёлок Кардо-Лента, ул. Садовая, д. 19

Пн - Чт.: с 09:00 до 18:00. Пт.: с 09:00 до 17:00

Похожие товары
L-образная рамка для напольного конвектора
L-образная рамка для напольного конвектора
Рулонная декоративная решетка для конвекторов FV
Рулонная декоративная решетка для конвекторов FV
Арт. 000183
Профиль L-образный для напольной решетки в конвектор (пог.м.)
Профиль L-образный для напольной решетки в конвектор (пог.м.)
Арт. 000197
Окантовочный профиль F-образный (пог.м.)
Окантовочный профиль F-образный (пог.м.)
Арт. 000190
Профиль для окантовки конвектора J-образный
Профиль для окантовки конвектора J-образный
Арт. 000184
Рамка для конвектора Z-образная
Рамка для конвектора Z-образная
Арт. 000187
Напольная вентиляционная решетка НПР, НПР-Р
Напольная вентиляционная решетка НПР, НПР-Р
Арт. 000092
Профиль для окантовки конвектора J-образный (пог.м.)
Профиль для окантовки конвектора J-образный (пог.м.)
Арт. 000196
Рассчитать стоимость
Получите бесплатный расчет стоимости через 10 минут в Telegram
Оставьте номер телефона. В течение дня мы подготовим вам варианты реализации и расчет стоимости.
Нужна консультация?
Наши специалисты ответят на любой интересующий вопрос
Задать вопрос